Добро пожаловать на http://vipplan.ru

Випплан Гагарин - это тысячи проектов домов в нашем каталоге!

Вы всегда сможете найти для себя проект дома вашей мечты! Даже если этого не случилось, мы готовы в любую минуту предложить проект индивидуального дома.

Забыли пароль?
Вы еще не регистрировались?

Перейдите по ссылке ниже на страницу регистрации.

Регистрация...

Внимание!!!

В проектную документацию могут быть внесены изменения любой сложности, в соответствии в Вашими пожеланиями!

Полезные статьи

Мероприятия по получению разрешения на строительство в Гагарине

Хотите построить дом в Гагарине? Не знаете с чего начать? Для начала, нужно заказать проект, а после получить разрешение на строительство. ...

Печи и камины в частном доме

Спросите любого человека, и вы поймете, что каждый человек мечтает иметь свой собственный дом, который он сможет обустроить так, как ему хочется. Этот дом будет полон уюта, тепла, света и комфорта, а главное, что, придя с работы, человек сможет запросто отдохнуть у своего очага.  Нет никакой альтернативы перед выбором печи или камина. Эти две вещи не сможет  заменить ни искусственный свет, ни солнечное освещение. Камин и печь, с древности, считаются предметом роскоши. Ни один большой дом не может обойтись без них, поскольку если удастся сесть и посидеть перед этим местом, то долго нельзя будет...

Проекты домов и коттеджей > Каталог проектов домов > Проект одноэтажного дома с мансардой Vg1080

Проект одноэтажного дома с мансардой Vg1080

Проект одноэтажного дома с мансардой
Зарегистрируйтесь

Проект № Vg1080


Техническое описание
Общая площадь: 164.85 м2
Жилая площадь: 90.55 м2
Высота здания: 8.27 м
Размеры дома: 21.14м×10.24м
Кол-во комнат: 5
Цокольный этаж: нет
Гараж: нет
Мансарда: есть

Kонструкция
Фундамент: Стена в грунте
Перекрытия: Монолитная ж/б плита
Материал стен: Опалубка

Архитектурный раздел
Конструктивный раздел
АР+КР - 56 000 (Со скидкой 20%)
Проект индивидуального одноэтажного жилого дома с мансардой с размерами здания 21,14 x 10,24 м. Наружная отделка здания – штукатурка, деревянные панели. Фундамент –стена в грунте («щелевой»). Наружные стены –несъемная опалубка. Внутренние стены - несъемная опалубка. Перегородки – ГКЛ на металлическом каркасе. Пол первого этажа - пол по грунту. Межэтажное перекрытие-монолитная ж/б плита. Крыша двухскатная. Кровля –металлочерепица. Окна — металлопластиковые
Генплан застройки участка / Паспорт проекта 7000 руб / 10000 руб
Инженерный раздел (полный) 82500 руб
Смета на строительство 41250 руб
Теплотехнический расчет материалов стен Бесплатно
Стоимость проекта со незначительнми изменениями 65850 руб
Стоимость проекта со средними изменениями* 78300 руб
Стоимость проекта со значительными изменениями** 81600 руб

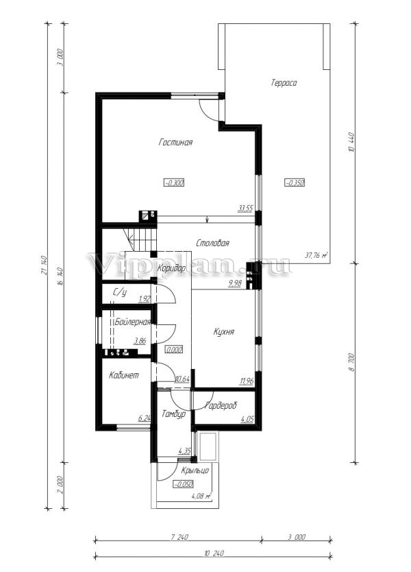
План первого этажа


Тамбур — 4,35 м2
Коридор — 10,64 м2
Кухня — 11,96 м2
Столовая — 9,98 м2
С/у — 1,92 м2
Бойлерная — 3,86 м2
Кабинет — 6,24 м2
Гардероб — 4,05 м2
Гостиная — 33,55 м2

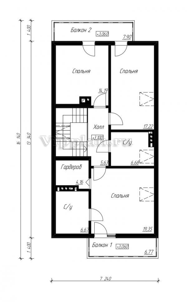
План мансардного этажа


Холл — 5,63 м2 Спальня — 14,19 м2 Спальня — 17,22 м2 С/у — 6,68 м2 Спальня — 19,35 м2 С/У — 6,67 м2 Гардероб — 4,16 м2
Проект одноэтажного дома с мансардой Проект одноэтажного дома с мансардой Проект одноэтажного дома с мансардой Проект одноэтажного дома с мансардой
Внесение изменений и привязка к участку строительства

В любой из проектов от компании VIPplan - Гагарин по вашему желанию могут быть внесены изменения в материалы стен, материалы наружной отделки дома, а также будет произведена адаптация проекта под конкретный регион строительства (с учетом грунтов региона, геологических особенностей вашего участка и местных климатических условий) - БЕСПЛАТНО !!! (кроме проектов со скидкой и проектов наших партнеров).

Любой из проектов, размещенных на сайте gagarin.vipplan.ru мы можем выполнить из требуемых вам строительных материалов: ячеистый бетон (газобетон, пеноблок), керамоблок, кирпич, шлакоблок, бетонный блок, дерево (брус, клееный брус), каркасная технология (деревянный каркас, металлокаркас (ЛСТК)).

Фасад дома и его наружную отделку так же возможно выполнить с применением различных облицовочных материалов: структурной штукатурки, (с утеплителем и без), сайдингом (пластиковый или металлосайдинг), фиброплитами, кирпича.

 
6 Избранные
проекты

Доставка проектов по России: Москва (Московская область), Санкт-Петербург (Ленинградская область), Краснодар, Ростов-на-Дону, Ставрополь, Сочи, Волгоград, Новосибирск, Белгород, Брянск, Воронеж, Саратов, Хабаровск, Астрахань, Нальчик, Владикавказ, Екатеринбург, Тюмень, Самара, Нижний Новгород, Казань, Пермь, Уфа, Челябинск, Красноярск, Ханты-Мансийск, Иркутск, Курган, Оренбург, Омск, Томск, Барнаул, Новокузнецк, Кемерово, Абакан, Чита, Якутск, Южно-Сахалинск, Петропавловск-Камчатский и страны ближнего зарубежья: Белоруссия, Украина, Казахстан