Добро пожаловать на http://vipplan.ru

Випплан Гагарин - это тысячи проектов домов в нашем каталоге!

Вы всегда сможете найти для себя проект дома вашей мечты! Даже если этого не случилось, мы готовы в любую минуту предложить проект индивидуального дома.

Забыли пароль?
Вы еще не регистрировались?

Перейдите по ссылке ниже на страницу регистрации.

Регистрация...

Внимание!!!

В проектную документацию могут быть внесены изменения любой сложности, в соответствии в Вашими пожеланиями!

Полезные статьи

Виды бассейнов

В наше время, строительство бассейна на территории своего участка, не такая уж и роскошь. Выбор видов и стилей бассейна, на сегодняшний день, очень большой....

Печи и камины в частном доме

Спросите любого человека, и вы поймете, что каждый человек мечтает иметь свой собственный дом, который он сможет обустроить так, как ему хочется. Этот дом будет полон уюта, тепла, света и комфорта, а главное, что, придя с работы, человек сможет запросто отдохнуть у своего очага.  Нет никакой альтернативы перед выбором печи или камина. Эти две вещи не сможет  заменить ни искусственный свет, ни солнечное освещение. Камин и печь, с древности, считаются предметом роскоши. Ни один большой дом не может обойтись без них, поскольку если удастся сесть и посидеть перед этим местом, то долго нельзя будет...

Проекты домов и коттеджей > Каталог проектов домов > Проект современного просторного двухэтажного дома Vg1205

Проект современного просторного двухэтажного дома Vg1205

Проект современного просторного двухэтажного дома
Зарегистрируйтесь

Проект № Vg1205


Техническое описание
Общая площадь: 277.47 м2
Жилая площадь: 112.01 м2
Высота здания: 8.97 м
Размеры дома: 22.74м×16.61м
Кол-во комнат: 5
Цокольный этаж: нет
Гараж: нет
Мансарда: есть

Kонструкция
Фундамент: Ленточный
Перекрытия: Монолитные перекрытия
Материал стен: Газобетон

Архитектурный раздел
АР+КР - 72 000 (Со скидкой 20%)
Срок подготовки данного проекта — 7 рабочих дней. Проект индивидуального двухэтажного жилого дома с размерами здания 22,74 x 16,61 м. Наружная отделка здания – фасадная штукатурка. Фундамент – ленточный монолитный (под несущими стенами). Наружные стены – газобетонные блоки. Внутренние стены - газобетонные блоки. Перегородки — газобетонные блоки. Снаружи вентканалы и дымоходы – фасадная штукатурка. Перекрытие межэтажное – монолитная ж/б плита. Пол первого этажа - пол по грунту. Крыша двухскатая. Кровля - металлочерепица. Окна - металлопластиковые, выполненные по индивидуальному заказу.
Генплан застройки участка / Паспорт проекта 7000 руб / 10000 руб
Инженерный раздел (полный) 138500 руб
Смета на строительство 69250 руб
Теплотехнический расчет материалов стен Бесплатно
Стоимость проекта со незначительнми изменениями 83050 руб
Стоимость проекта со средними изменениями* 103900 руб
Стоимость проекта со значительными изменениями** 109400 руб

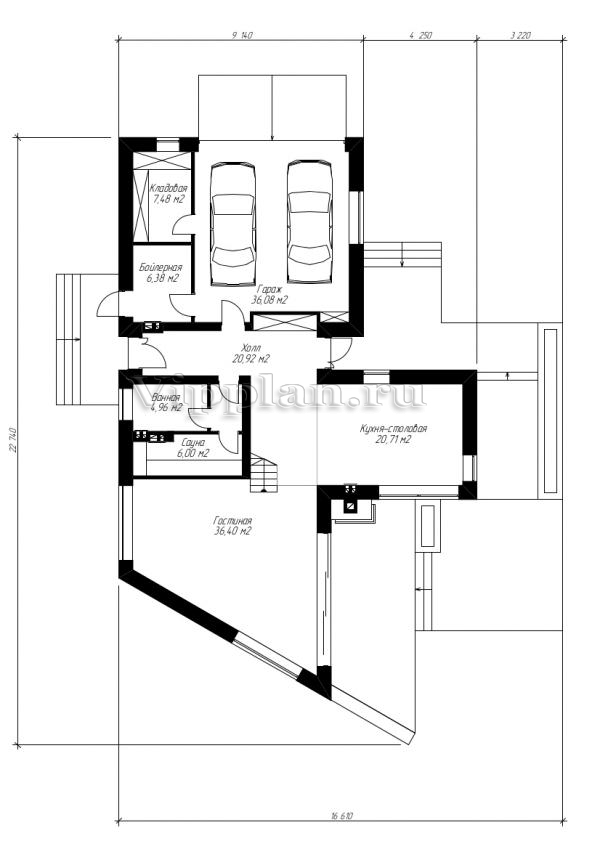
План первого этажа


Холл — 20,92 м2
Ванная — 4,96 м2
Сауна — 6,00 м2
Гостиная — 36,40 м2
Кухня — 20,71 м2
Кладовая — 7,48 м2
Бойлерная — 6,38 Гараж — 36,08 м2

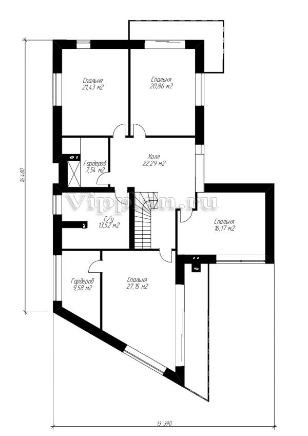
План мансардного этажа


Холл — 22,29 м2
Спальня — 21,43 м2
Спальня — 20,86 м2
Гардероб — 7,54 м2
С/у — 13,52 м2
Спальня — 16,17 м2
Гардероб — 9,58 м2
Спальня — 27,15 м2
Проект современного просторного двухэтажного дома Проект современного просторного двухэтажного дома Проект современного просторного двухэтажного дома Проект современного просторного двухэтажного дома
Внесение изменений и привязка к участку строительства

В любой из проектов от компании VIPplan - Гагарин по вашему желанию могут быть внесены изменения в материалы стен, материалы наружной отделки дома, а также будет произведена адаптация проекта под конкретный регион строительства (с учетом грунтов региона, геологических особенностей вашего участка и местных климатических условий) - БЕСПЛАТНО !!! (кроме проектов со скидкой и проектов наших партнеров).

Любой из проектов, размещенных на сайте gagarin.vipplan.ru мы можем выполнить из требуемых вам строительных материалов: ячеистый бетон (газобетон, пеноблок), керамоблок, кирпич, шлакоблок, бетонный блок, дерево (брус, клееный брус), каркасная технология (деревянный каркас, металлокаркас (ЛСТК)).

Фасад дома и его наружную отделку так же возможно выполнить с применением различных облицовочных материалов: структурной штукатурки, (с утеплителем и без), сайдингом (пластиковый или металлосайдинг), фиброплитами, кирпича.

 
6 Избранные
проекты

Доставка проектов по России: Москва (Московская область), Санкт-Петербург (Ленинградская область), Краснодар, Ростов-на-Дону, Ставрополь, Сочи, Волгоград, Новосибирск, Белгород, Брянск, Воронеж, Саратов, Хабаровск, Астрахань, Нальчик, Владикавказ, Екатеринбург, Тюмень, Самара, Нижний Новгород, Казань, Пермь, Уфа, Челябинск, Красноярск, Ханты-Мансийск, Иркутск, Курган, Оренбург, Омск, Томск, Барнаул, Новокузнецк, Кемерово, Абакан, Чита, Якутск, Южно-Сахалинск, Петропавловск-Камчатский и страны ближнего зарубежья: Белоруссия, Украина, Казахстан