Добро пожаловать на http://vipplan.ru

Випплан Гагарин - это тысячи проектов домов в нашем каталоге!

Вы всегда сможете найти для себя проект дома вашей мечты! Даже если этого не случилось, мы готовы в любую минуту предложить проект индивидуального дома.

Забыли пароль?
Вы еще не регистрировались?

Перейдите по ссылке ниже на страницу регистрации.

Регистрация...

Внимание!!!

В проектную документацию могут быть внесены изменения любой сложности, в соответствии в Вашими пожеланиями!

Полезные статьи

Утепление стен дома изнутри

Утепление стен дома изнутри – это не правильный метод теплоизоляции помещения и используется в самом крайнем случае, когда других вариантов уже не остается. Как правило, утепление стен изнутри выполняется по незнанию или вынужденно, поскольку, теплоизоляция внутренних помещений дома другим способом невозможна. Вопросы теплоизоляции необходимо решать на стадии проектирования дома или коттеджа, а не тогда когда дом уже построен и приходится исправлять совершенные ошибки по факту....

Окна в доме

От хорошего стеклопакета зависит почти 50% теплостойкости всего дома. Ведь на проемы в окнах приходится до 45% тепловых потерь дома. Поэтому хорошие стеклопакеты не пропускают тепло из комнаты и должны противостоять проникновению ветра, влаги и холода с наружной стороны....

Проекты домов и коттеджей > Каталог проектов домов > Одноэтажный дом с мансардой и гаражом на две машины Vg2265

Одноэтажный дом с мансардой и гаражом на две машины Vg2265

Одноэтажный дом с мансардой и гаражом на две машины
Зарегистрируйтесь

Проект № Vg2265


Техническое описание
Общая площадь: 266.87 м2
Жилая площадь: 151.29 м2
Высота здания: 8.68 м
Размеры дома: 11.26м×16.38м
Кол-во комнат: 6
Цокольный этаж: нет
Гараж: нет
Мансарда: есть

Kонструкция
Фундамент: Винтовые сваи
Перекрытия: Деревянные балки
Материал стен: Каркас

Архитектурный раздел
Конструктивный раздел
АР+КР - 72 000 (Со скидкой 20%)
Проект индивидуального одноэтажного жилого дома с мансардой с размерами здания 11,26 x 16,38 м. Наружная отделка здания –металлический сайдинг. Фундамент – винтовые сваи. Наружные стены – SIP-панели, сайдинг по обрешетке. Внутренние стены – SIP-панели Перегородки – SIP-панели Пол 1 этажа - частично пол по монолитной плите, SIP-панели. Межэтажное перекрытие -деревянные балки. Крыша многоскатная. Кровля – металлочерепица. Окна — металлопластиковые
Генплан застройки участка / Паспорт проекта 7000 руб / 10000 руб
Инженерный раздел (полный) 133500 руб
Смета на строительство 66750 руб
Теплотехнический расчет материалов стен Бесплатно
Стоимость проекта со незначительнми изменениями 83300 руб
Стоимость проекта со средними изменениями* 103400 руб
Стоимость проекта со значительными изменениями** 108700 руб

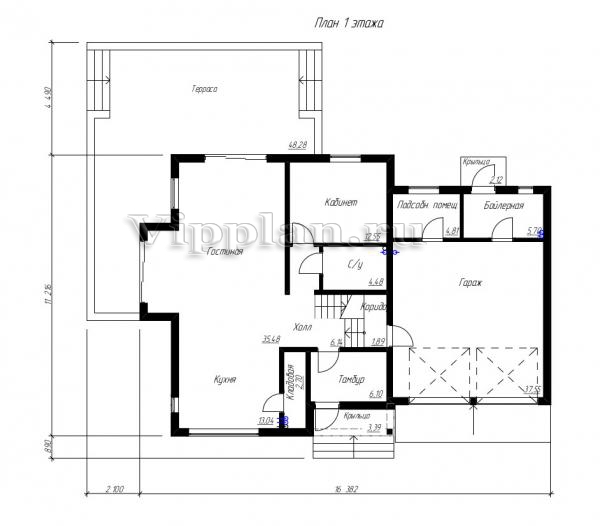
План первого этажа


Крыльцо — 3,39 кв м
Тамбур — 6,10 кв м
Холл — 6,14 кв м
Кухня — 13,04 кв м
Кладовая — 2,70 кв м
Столовая — 35,48 кв м
Кабинет — 12,55 кв м
С/у — 4,48 кв м
Коридор — 1,89 кв м
Гараж — 37,55 кв м
Подсобка — 4,81 кв м
Бойлерная — 5,70 кв м
Крыльцо — 2,12 кв м

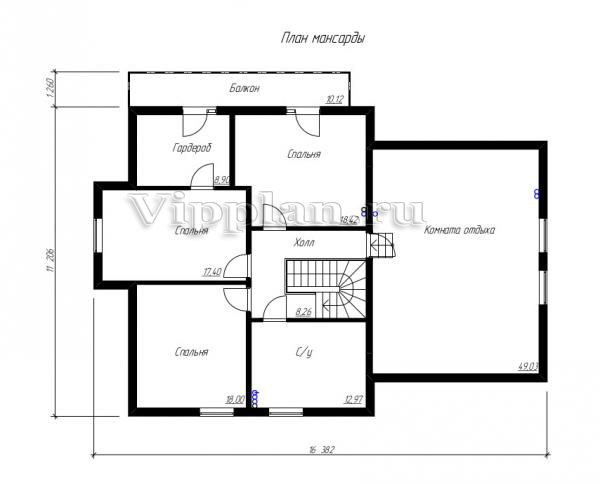
План мансардного этажа


Холл — 8,26 кв м
Спальня — 18,00 кв м
Спальня — 17,40 кв м
Гардероб — 8,90 кв м
Балкон — 10,12 кв м
Спальня — 18,42 кв м
Помещение — 49,03 кв м
С/у — 12,97 кв м
Одноэтажный дом с мансардой и гаражом на две машины Одноэтажный дом с мансардой и гаражом на две машины Одноэтажный дом с мансардой и гаражом на две машины Одноэтажный дом с мансардой и гаражом на две машины

Модификации проектов

Внесение изменений и привязка к участку строительства

В любой из проектов от компании VIPplan - Гагарин по вашему желанию могут быть внесены изменения в материалы стен, материалы наружной отделки дома, а также будет произведена адаптация проекта под конкретный регион строительства (с учетом грунтов региона, геологических особенностей вашего участка и местных климатических условий) - БЕСПЛАТНО !!! (кроме проектов со скидкой и проектов наших партнеров).

Любой из проектов, размещенных на сайте gagarin.vipplan.ru мы можем выполнить из требуемых вам строительных материалов: ячеистый бетон (газобетон, пеноблок), керамоблок, кирпич, шлакоблок, бетонный блок, дерево (брус, клееный брус), каркасная технология (деревянный каркас, металлокаркас (ЛСТК)).

Фасад дома и его наружную отделку так же возможно выполнить с применением различных облицовочных материалов: структурной штукатурки, (с утеплителем и без), сайдингом (пластиковый или металлосайдинг), фиброплитами, кирпича.

 
6 Избранные
проекты

Доставка проектов по России: Москва (Московская область), Санкт-Петербург (Ленинградская область), Краснодар, Ростов-на-Дону, Ставрополь, Сочи, Волгоград, Новосибирск, Белгород, Брянск, Воронеж, Саратов, Хабаровск, Астрахань, Нальчик, Владикавказ, Екатеринбург, Тюмень, Самара, Нижний Новгород, Казань, Пермь, Уфа, Челябинск, Красноярск, Ханты-Мансийск, Иркутск, Курган, Оренбург, Омск, Томск, Барнаул, Новокузнецк, Кемерово, Абакан, Чита, Якутск, Южно-Сахалинск, Петропавловск-Камчатский и страны ближнего зарубежья: Белоруссия, Украина, Казахстан