Добро пожаловать на http://vipplan.ru

Випплан Гагарин - это тысячи проектов домов в нашем каталоге!

Вы всегда сможете найти для себя проект дома вашей мечты! Даже если этого не случилось, мы готовы в любую минуту предложить проект индивидуального дома.

Забыли пароль?
Вы еще не регистрировались?

Перейдите по ссылке ниже на страницу регистрации.

Регистрация...

Внимание!!!

В проектную документацию могут быть внесены изменения любой сложности, в соответствии в Вашими пожеланиями!

Полезные статьи

Сборные фундаменты

В наше время все большую популярность при строительстве дома приобретают сборные бетонные и железобетонные блоки. Их использование значительно сокращает время работ и снижает их трудоемкость....

Выбор проекта дома (площадь, этажность - 1 или 2 этажа)

Для того что бы выбрать проект дома, предварительно необходимо определиться, какой будет площадь будущего дома (решение зависит от количества человек, планирующих постоянно в нем проживать), количество спален, санузлов и ванных комнат, компоновка дома, одноэтажный, масардный или двухэтажный дом (зависит от площади участка и предпочтений будущих хозяев) ...

Проекты домов и коттеджей > Каталог проектов домов > Двухэтажный дом с банным комплексом и бассейном, террасой, балконами и гаражом на 2 машины. Vg3324

Двухэтажный дом с банным комплексом и бассейном, террасой, балконами и гаражом на 2 машины. Vg3324

Двухэтажный дом  с банным комплексом и бассейном, террасой, балконами и гаражом на 2 машины.
Зарегистрируйтесь

Проект № Vg3324


Техническое описание
Общая площадь: 411.05 м2
Жилая площадь: 158.95 м2
Высота здания: 7.85 м
Размеры дома: 17.88м×24.73м
Кол-во комнат: 8
Цокольный этаж: нет
Гараж: нет
Мансарда: нет

Kонструкция
Фундамент: монолитная плита
Перекрытия: монолитные
Материал стен: material_mon

Архитектурный раздел
АР+КР - 100 000 (Со скидкой 20%)
Двухэтажный дом с размерами здания 17,88 х 24,73м. Наружная отделка здания – фиброцементные панели. Фундамент – монолитная ж/б плита. Наружные стены – керамические блоки. Внутренние стены – керамические блоки. Перегородки – керамические блоки. Пол 1 этажа – по фундаментной монолитной ж/б плите. Пол 2 этажа – монолитная ж/б плита. Чердачное перекрытие – монолитная ж/б плита. Крыша плоская. Окна — металлопластиковые.
Генплан застройки участка / Паспорт проекта 7000 руб / 10000 руб
Инженерный раздел (полный) 205500 руб
Смета на строительство 102750 руб
Теплотехнический расчет материалов стен Бесплатно
Стоимость проекта со незначительнми изменениями 114700 руб
Стоимость проекта со средними изменениями* 145600 руб
Стоимость проекта со значительными изменениями** 153800 руб

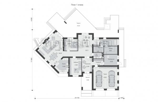
План первого этажа


Прихожая - 12,38 м2
Гараж - 45,83 м2
Гардероб - 6,16 м2
С/у - 4,39 м2
Бойлерная - 12,62 м2
Хамам - 9,08 м2
Парилка - 5,25 м2
Душевая - 10,26 м2
Холл - 32,71 м2
Гостевая - 13,65 м2
Гостиная - 44,32 м2
Кухня - 13,46 м2
Кабинет - 17,85 м2

Двухэтажный дом с банным комплексом и бассейном, террасой, балконами и гаражом на 2 машины.

Двухэтажный дом  с банным комплексом и бассейном, террасой, балконами и гаражом на 2 машины.

План второго этажа


Холл - 22,32 м2
Спальня - 12,77 м2
Игровая - 17,60 м2
Спальня - 12,78 м2
Спальня - 12,78 м2
С/у - 12,51 м2
Спальня няни - 17,85 м2
Постирочная - 4,83 м2
С/у - 7,19 м2
Ванная - 10,69 м2
Гардероб - 14,71 м2
Спальн - 26,95 м2
Двухэтажный дом  с банным комплексом и бассейном, террасой, балконами и гаражом на 2 машины. Двухэтажный дом  с банным комплексом и бассейном, террасой, балконами и гаражом на 2 машины. Двухэтажный дом  с банным комплексом и бассейном, террасой, балконами и гаражом на 2 машины. Двухэтажный дом  с банным комплексом и бассейном, террасой, балконами и гаражом на 2 машины.

Модификации проектов

Внесение изменений и привязка к участку строительства

В любой из проектов от компании VIPplan - Гагарин по вашему желанию могут быть внесены изменения в материалы стен, материалы наружной отделки дома, а также будет произведена адаптация проекта под конкретный регион строительства (с учетом грунтов региона, геологических особенностей вашего участка и местных климатических условий) - БЕСПЛАТНО !!! (кроме проектов со скидкой и проектов наших партнеров).

Любой из проектов, размещенных на сайте gagarin.vipplan.ru мы можем выполнить из требуемых вам строительных материалов: ячеистый бетон (газобетон, пеноблок), керамоблок, кирпич, шлакоблок, бетонный блок, дерево (брус, клееный брус), каркасная технология (деревянный каркас, металлокаркас (ЛСТК)).

Фасад дома и его наружную отделку так же возможно выполнить с применением различных облицовочных материалов: структурной штукатурки, (с утеплителем и без), сайдингом (пластиковый или металлосайдинг), фиброплитами, кирпича.

 
6 Избранные
проекты

Доставка проектов по России: Москва (Московская область), Санкт-Петербург (Ленинградская область), Краснодар, Ростов-на-Дону, Ставрополь, Сочи, Волгоград, Новосибирск, Белгород, Брянск, Воронеж, Саратов, Хабаровск, Астрахань, Нальчик, Владикавказ, Екатеринбург, Тюмень, Самара, Нижний Новгород, Казань, Пермь, Уфа, Челябинск, Красноярск, Ханты-Мансийск, Иркутск, Курган, Оренбург, Омск, Томск, Барнаул, Новокузнецк, Кемерово, Абакан, Чита, Якутск, Южно-Сахалинск, Петропавловск-Камчатский и страны ближнего зарубежья: Белоруссия, Украина, Казахстан